Hi all,
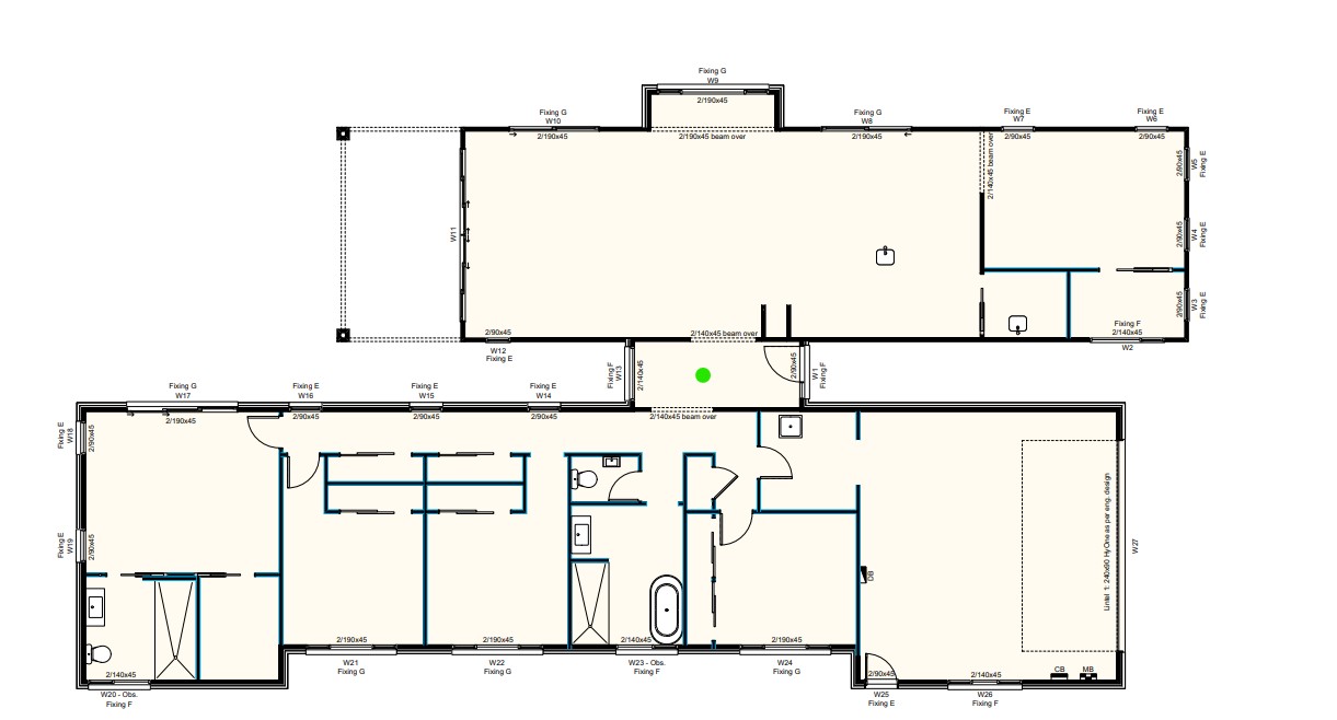
We're about to kick off a new build and I'm just after a bit of advice on where and how many wifi AP's we should have. I've done a bit of my own research but it seems to come down to trial and error once you've moved in approach. I'm just wanting to make sure we get it right as best we can/future proof a little bit if I need to move anything. That said, based on the attached floor plan, its a 280sqM house, standard GIB internal walls. Would you think that one WIFI AP would be suitable in the centre of the house as indicated on the plan? I'm not keen to have them in bedrooms and apparently hallways aren't very good? Looking to use the unifi gear, but recommendations on AP would be great to ensure good coverage across the house.
I've read numerous posts here and think I have the CAT cabling plan/network cabinet sorted.
thanks



